Cyberus Crescent, Philadelphia, Houghton le Spring, Tyne and Wear, DH4 4FN
Philadelphia, Houghton le Spring, Tyne and Wear See map
Property Summary
Stunning end of terrace house located in a sought-after neighbourhood. This charming property boasts three bedrooms, offering a perfect blend of comfort and style. The interior exudes a cosy and bright atmosphere, ideal for relaxing or entertaining guests. The modern kitchen is equipped with high-quality appliances, while the spacious living room provides a welcoming space for family gatherings. Outside, the property features rear garden with patio area, perfect for enjoying outdoor activities or simply unwinding in the fresh air. Additionally, off-street parking is available for added convenience. With its prime location and attractive features, this property offers the perfect opportunity for a discerning buyer seeking a modern and stylish home. Book a viewing today to experience the beauty and appeal of this wonderful property.
Full Details
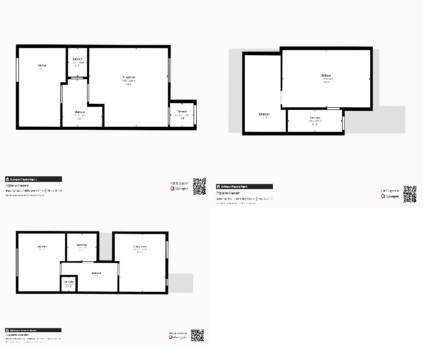
GROUND FLOOR
Entrance Porch
Leading to
Lounge 4.55m x 3.66m
Carpeted flooring, double glazed window and radiator.
WC
Herringbone vinyl flooring, low level wc, wash hand basin and radiator.
Kitchen/Diner 2.0m x 2.83m
Having a range of wall and base units, herringbone vinyl flooring, gas hob, electric oven, stainless steel splashback, stainless steel sink unit, space for washer, integrated fridge freezer, radiator and French doors leading to rear garden.
FIRST FLOOR
Landing
Radiator.
Bedroom 2 3.63m x 2.68m
Carpeted flooring, double glazed window and radiator.
Bedroom 3 3.59m x 2.72m
Carpeted flooring, double glazed window and radiator.
Family Bathroom 2.28m x 1.61m
Herringbone vinyl flooring, double glazed window, low level wc, wash hand basin, panelled bath and radiator.
Master Bedroom 2.56m x 3.85m
Carpeted flooring , double glazed window, radiator leading to
Ensuite Bathroom
Herringbone vinyl flooring, wash hand basin, low level wc, shower cubicle, double glazed window.
Exterior
Externally the property comprises of a single driveway to the front. To the rear there is gateway access leading to fence enclosed garden with flagged patio area.
EPC: B
Tenure: Freehold
Council Tax Band: B
Material Information
The following information should be read and considered by any potential buyers prior to making a transactional decision.
SERVICES:
We are advised by the seller that the property has mains provide gas, electricity, water and drainage.
MAINTENANCE/SERVICE CHARGES- N/A
PARKING ARRANGEMENTS: Driveway
BROADBAND SPEED: The maximum speed for broadband in this area is shown by inputting the postcode at the following link here> Broadband Speed Checker - UK's No.1 Broadband Speed Test
ELECTRIC CAR CHARGER- No
MOBILE PHONE SIGNAL: No known issues at the property
NORTH EAST OF ENGLAND- EX MINING AREA: We operate in an ex-mining area. This property may have been built on or near an ex-mining site. Further information can/will be clarified by the Solicitors prior to completion.
The information above has been provided by the seller and has not yet been verified at this point of producing this material. There may be more information related to the sale of this property that can be made available to any potential buyer.
Disclaimer
Every attempt has been made to ensure accuracy, however these property particulars are approximate and for illustrative purposes only. They have been prepared in good faith and they are not intended to constitute part of an offer of contract. We have not carried out a structural survey and the services, appliances and specific fittings have not been tested. All photographs, measurements, floor plans and distances referred to are given as a guide only and should not be relied upon for the purchase of any fixture or fittings. Lease details, service charges and ground rent (where applicable) are given as a guide only and should be checked prior to agreeing a sale.































