Property Summary
The property has been thoughtfully updated and benefits from good-sized rooms throughout, providing both comfort and practicality. The heart of the home is the beautifully appointed kitchen perfect for everyday use. A stylish modern bathroom complements the internal accommodation, adding a contemporary feel.
Upstairs, the two well-proportioned bedrooms offer flexible and comfortable accommodation, both full of natural light and space.
Externally, the home features a yard to the rear, offering a private outdoor space, along with street parking to the front for convenience.
Situated close to local amenities, transport links, and schools, this property is well positioned for everyday living and offers fantastic value in the current market.
Early viewing is highly recommended to fully appreciate the quality and space on offer.
Full Details
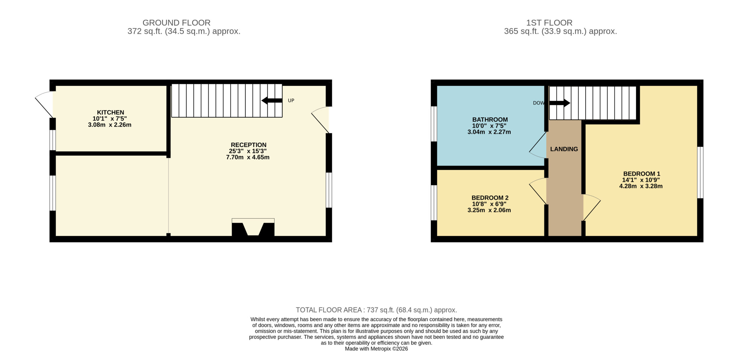
Reception / Dining Room 4.65m x 7.70m
Laminate Flooring, 2no UPVC Windows, Feature Fire with Surround, Radiators
Kitchen 2.26m x 3.08m
Vinyl Flooring, UPVC Window, UPVC Door, Wall and Base Units, Sink with Mixer Tap, Electric Oven and Hob with Extractor Fan, Radiator
Bedroom 1 3.28m x 4.28m
Carpeted Flooring, UPVC Window, Radiator
Bedroom 2 2.06m x 3.25m
Carpeted Flooring, UPVC Window, Radiator
Bathroom 2.27m x 3.04m
Vinyl Flooring, UPVC Window, Washbasin with Mixer Tap and built in storage, W/C, Panelled Bath with Overhead Shower, Glass Shower Screen, Towel Radiator.
Tenure: Freehold
EPC: D
Council Tax Band: A, Sunderland
Parking: Street Parking
Disclaimer
Every attempt has been made to ensure accuracy, however these property particulars are approximate and for illustrative purposes only. They have been prepared in good faith and they are not intended to constitute part of an offer of contract. We have not carried out a structural survey and the services, appliances and specific fittings have not been tested. All photographs, measurements, floor plans and distances referred to are given as a guide only and should not be relied upon for the purchase of any fixture or fittings. Lease details, service charges and ground rent (where applicable) are given as a guide only and should be checked prior to agreeing a sale.
Material Information
The following information should be read and considered by any potential buyers prior to making a transactional decision.
SERVICES:
We are advised by the seller that the property has mains provide gas, electricity, water and drainage.
MAINTENANCE/SERVICE CHARGES- none
WATER METER- No
PARKING ARRANGEMENTS: Street Parking
BROADBAND SPEED: The maximum speed for broadband in this area is shown by inputting the postcode at the following link here> https://www.youfibre.com/?utm_network=o&msclkid=a964e1396205158931618726fe30f982&utm_source=bing&utm_medium=cpc&utm_campaign=You%20Fibre%20%7C%20Broadband%20%7C%20Grouped%20campaign%20test&utm_term=how%20fast%20is%20my%20broadband&utm_content=Fast
ELECTRIC CAR CHARGER- No
MOBILE PHONE SIGNAL: No known issues at the property
NORTH EAST OF ENGLAND- EX MINING AREA: We operate in an ex-mining area. This property may have been built on or near an ex-mining site. Further information can/will be clarified by the Solicitors prior to completion.
The information above has been provided by the seller and has not yet been verified at this point of producing this material. There may be more information related to the sale of this property that can be made available to any potential buyer.
Viewing Arrangements
To arrange an appointment to view this property, please contact us on 01915124940.
hours are :
Monday to Friday 9.00a.m. to 5.00pm. / Saturday 9.00a.m. to 12.00pm.

























