Property Summary
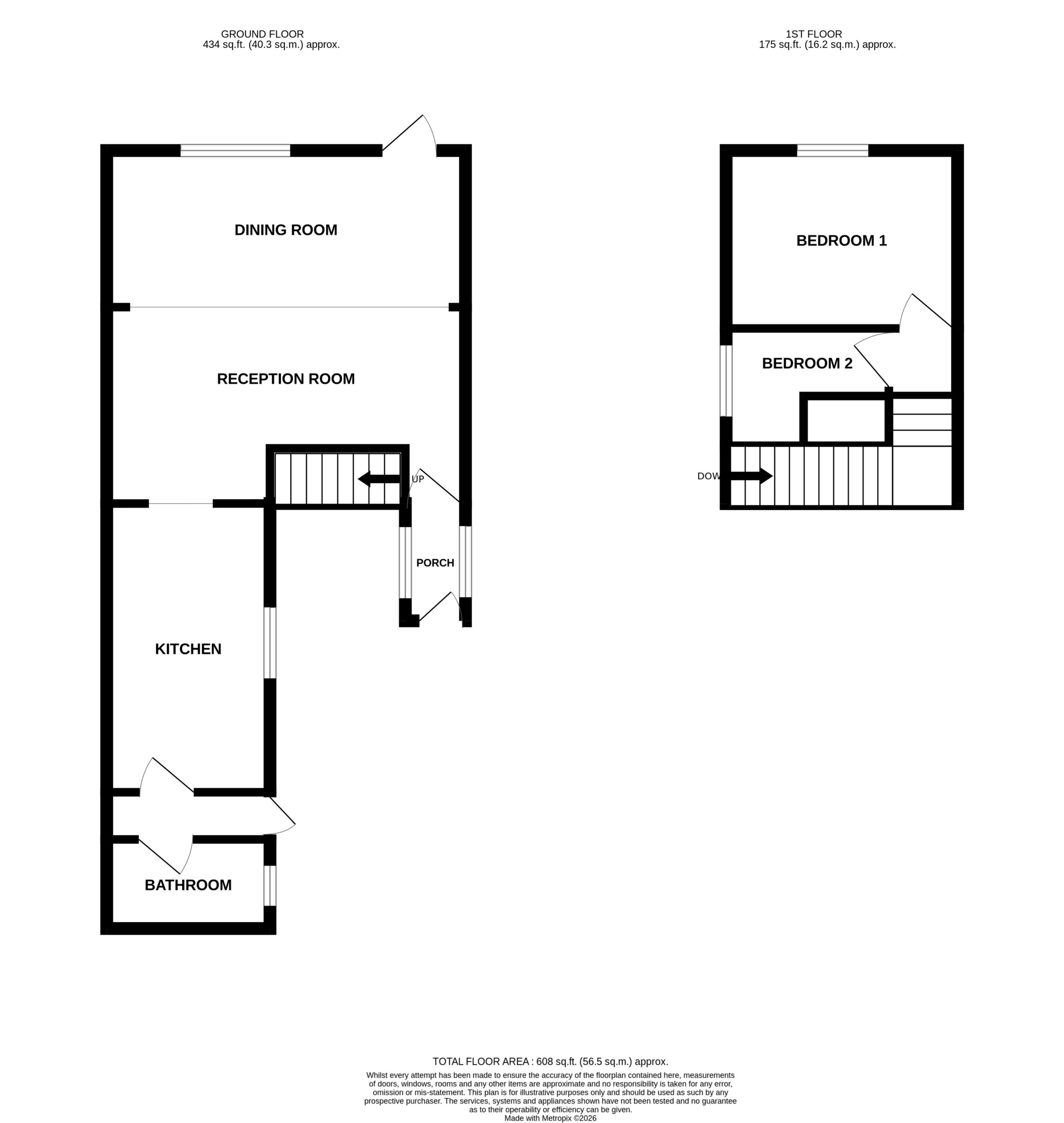
The ground floor features a very large reception/dining room providing an excellent open and versatile living space ideal for families and entertaining. This is complemented by a well-proportioned kitchen and a family bathroom.
To the first floor are two good-sized bedrooms all offering comfortable and practical living space. The property further benefits from an impressive loft area which is fully boarded, carpeted and provides extensive storage, a rare and valuable feature.
Externally, the home enjoys outside space adding to its appeal and practicality.
Offering excellent room sizes, superb storage and a great location close to local amenities and transport links, this is a fantastic opportunity for a range of buyers.
Early viewing is highly recommended, a must see to truly appreciate the space and layout.
Full Details
Reception / Diner 4.86m x 7.65m
carpeted Flooring, UPVC Window, UPVC Door, Stairs leading to bedrooms Radiator
Kitchen 2.32m x 2.82m
Tiled Flooring, UPVC Window, Wall and Base Units, Stainless Steel Sink Unit with Drainer and Mixer Tap, Gas Bolier, Electric Oven, Gas Hob and Extractor Fan
Bedroom 1 2.47m x 4.39m
Carpeted Flooring, UPVC Window, Radiator
Bedroom 2 2.32m x 3.97m
Carpeted Flooring, UPVC Window, Radiator
Bathroom 1.65m x 2.32m
Tiled Flooring, UPVC Window, Washbasin with Mixer Tap, Heated Towel Radiator, Electric Shower, W/C, Spotlights
EPC TBC
Council Tax Band A, Sunderland
Parking Street Parking
Material Information
The following information should be read and considered by any potential buyers prior to making a transactional decision.
SERVICES:
We are advised by the seller that the property has mains provide gas, electricity, water and drainage.
MAINTENANCE/SERVICE CHARGES- none
WATER METER- No
PARKING ARRANGEMENTS: Street Parking
BROADBAND SPEED: The maximum speed for broadband in this area is shown by inputting the postcode at the following link here> https://www.youfibre.com/?utm_network=o&msclkid=a964e1396205158931618726fe30f982&utm_source=bing&utm_medium=cpc&utm_campaign=You%20Fibre%20%7C%20Broadband%20%7C%20Grouped%20campaign%20test&utm_term=how%20fast%20is%20my%20broadband&utm_content=Fast
ELECTRIC CAR CHARGER- No
MOBILE PHONE SIGNAL: No known issues at the property
NORTH EAST OF ENGLAND- EX MINING AREA: We operate in an ex-mining area. This property may have been built on or near an ex-mining site. Further information can/will be clarified by the Solicitors prior to completion.
The information above has been provided by the seller and has not yet been verified at this point of producing this material. There may be more information related to the sale of this property that can be made available to any potential buyer.
Disclaimer
Every attempt has been made to ensure accuracy, however these property particulars are approximate and for illustrative purposes only. They have been prepared in good faith and they are not intended to constitute part of an offer of contract. We have not carried out a structural survey and the services, appliances and specific fittings have not been tested. All photographs, measurements, floor plans and distances referred to are given as a guide only and should not be relied upon for the purchase of any fixture or fittings. Lease details, service charges and ground rent (where applicable) are given as a guide only and should be checked prior to agreeing a sale.
Viewing Arrangements
To arrange an appointment to view this property, please contact us on 01915124940.
hours are :
Monday to Friday 9.00a.m. to 5.00pm. / Saturday 9.00a.m. to 12.00pm.



























