Property Summary
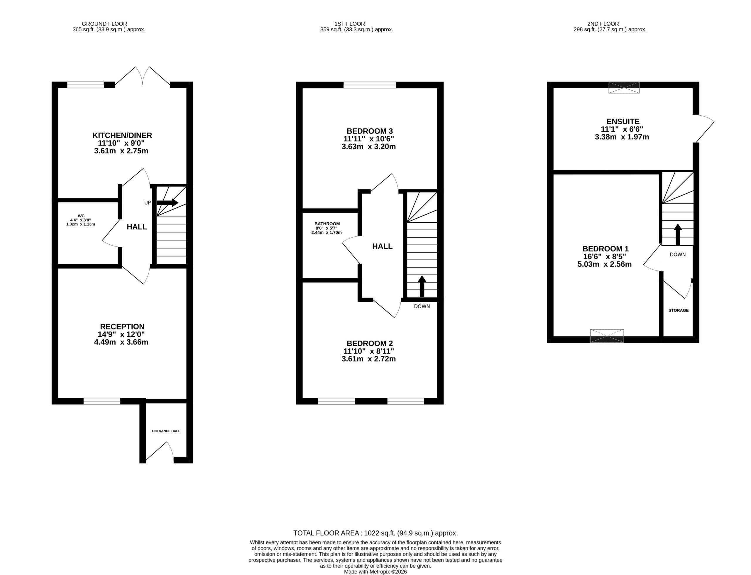
The ground floor briefly comprises a welcoming entrance hallway, a contemporary fitted kitchen with modern units and integrated appliances and a bright and spacious lounge/dining area with French doors opening onto the rear garden creating an ideal space for both relaxing and entertaining.
To the first floor are two well-proportioned bedrooms and a modern family bathroom fitted with a sleek white suite.
Occupying the entire top floor is an impressive principal bedroom suite,offering generous space, excellent natural light and a private feel.
Externally, the property benefits from a driveway to the front providing off-street parking. To the rear is a substantial enclosed garden offering a perfect outdoor space for families, entertaining, or future landscaping potential.
Located in a popular residential area the home enjoys convenient access to local amenities, schools and transport links making it an ideal location for commuters.
Early viewing is highly recommended to appreciate the quality, space and superb location this property has to offer.
Full Details
Reception 3.66m x 4.49m
Carpeted Flooring, Media Wall, UPVC Window, Radiator
Kitchen 2.75m x 3.61m
Vinyl Flooring, UPVC Window, UPVC French Doors, Wall and Base Units, Gas Hob with Oven and Extractor Hob, Stainless Steel Sink with Drainer and Mixer Tap, Integrated Appliances, Radiator
W/C 1.13m x 1.32m
Vinyl Flooring, W/C, Washbasin with Mixer Tap, Radiator
Bedroom 1 2.56m x 5.03m
Carpeted Flooring, Fitted Wardrobes, Skylight, Radiator
En Suite 1.97m x 3.38m
Vinyl Flooring, Part Tiled Walls, Skylight, W/C, Shower Cubicle, Washbasin with Mixer Tap, Radiator
Bedroom 2 2.72m x 3.61m
Carpeted Flooring, UPVC Window, Radiator
Bedroom 3 3.20m x 3.63m
Carpeted Flooring, UPVC Window, Radiator
Bathroom 1.70m x 2.44m
Vinyl Flooring, Part Tiled Walls, W/C, Panelled Bath, Washbasin with Mixer Tap, Radiator
EPC: B
Council Tax Band: B, Sunderland
Parking: Driveway
Material Information
The following information should be read and considered by any potential buyers prior to making a transactional decision.
SERVICES:
We are advised by the seller that the property has mains provide gas, electricity, water and drainage.
MAINTENANCE/SERVICE CHARGES- none
WATER METER- Yes
PARKING ARRANGEMENTS: Driveway
BROADBAND SPEED: The maximum speed for broadband in this area is shown by inputting the postcode at the following link here> https://www.youfibre.com/?utm_network=o&msclkid=a964e1396205158931618726fe30f982&utm_source=bing&utm_medium=cpc&utm_campaign=You%20Fibre%20%7C%20Broadband%20%7C%20Grouped%20campaign%20test&utm_term=how%20fast%20is%20my%20broadband&utm_content=Fast
ELECTRIC CAR CHARGER- No
MOBILE PHONE SIGNAL: No known issues at the property
NORTH EAST OF ENGLAND- EX MINING AREA: We operate in an ex-mining area. This property may have been built on or near an ex-mining site. Further information can/will be clarified by the Solicitors prior to completion.
The information above has been provided by the seller and has not yet been verified at this point of producing this material. There may be more information related to the sale of this property that can be made available to any potential buyer.
Disclaimer
Every attempt has been made to ensure accuracy, however these property particulars are approximate and for illustrative purposes only. They have been prepared in good faith and they are not intended to constitute part of an offer of contract. We have not carried out a structural survey and the services, appliances and specific fittings have not been tested. All photographs, measurements, floor plans and distances referred to are given as a guide only and should not be relied upon for the purchase of any fixture or fittings. Lease details, service charges and ground rent (where applicable) are given as a guide only and should be checked prior to agreeing a sale.
Viewing Arrangements
To arrange an appointment to view this property, please contact us on 01915124940.
hours are :
Monday to Friday 9.00a.m. to 5.00pm. / Saturday 9.00a.m. to 12.00pm.









































